Marseille : portes-ouvertes du jardin solidaire de la Savine
Le vendredi 28 mai et samedi 29 mai, le jardin solidaire de la Savine ouvre ses portes. L'accès au jardin se fait sur réservation et en entrée libre. "Les visiteurs pourront profiter d'un stand de vente où leur seront proposés des fleurs et des légume du jardin. Les bénéfices seront reversés à l'association des Restos du Cœur".
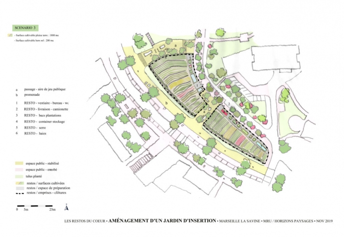
En 2019, dans le cadre de la convention ANRU signée en 2009, le bâtiment J du quartier a été démoli. "Les 2 000 m² disponibles sur le plateau de la Savine se sont transformés en potager d'insertion. Grâce au partenariat entre Logirem, Soleam, Marseille Rénovation Urbaine, le groupement Horizon et les Restos du Cœur, ce terrain a été transformé pour accompagner la transition "nature" du quartier, dans un projet global d'agriculture urbaine à La Savine".
Le terrain est à la disposition de l'association des Restos du Cœur pour 5 ans, afin de "créer un potager, sous forme de chantier d'insertion. Ainsi, des chômeurs de longue durée sont accompagnés dans un parcours de retour à l'emploi. 12 personnes à temps plein sont recrutées par un encadrant technique et un administratif. L'ensemble des fruits et légumes cultivés sont donnés à la banque alimentaire des Restos du cœur."
Retrouvez plus d'informations sur l'événement et le lien pour vous inscrire, sur le site logirem
Pour aller plus loin :
Marseille : Des paniers bio pour aider les étudiant.es
Marseille : Formation "Maraîchage sur petite surface"
Marseille : Formation "Permaéconomie"







